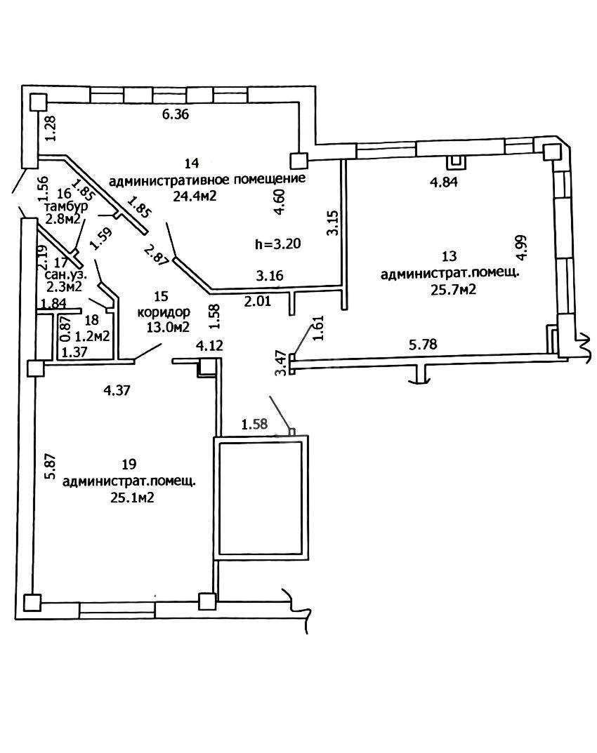
Предлагается в аренду изолированное офисное помещение с 3 отдельными кабинетами общей площадью 94.5 м2 на цокольном этаже. Отличное расположение в непосредственной близости от станции метро «Ковальская Слобода».
Планировка и коммуникации:
3 отдельных кабинета;
Небольшая кладовая комната для хранения;
Современная отделка, с ремонтом.
Собственный санузел;
Подведен оптоволоконный кабель для высокоскоростного интернета;
Телефонные линии.
Коммунальные платежи: 400-600 руб./мес. (лето), 700-900 руб./мес. (зима).
Безопасность и доступ:
Круглосуточный доступ в здание;
Рядом парковка;
Пожарная сигнализация;
Видеодомофон;
Около станции метро «Ковальская Слобода».
Последними арендаторами были: Розничный китайский магазин и отделение «Белпочты».
Больше объявлений тут: www.instagram.com/garant.arenda
Напишите нам в удобный для Вас мессенджер:
Viber | Telegram | WhatsApp
Ответим на Ваши вопросы, предоставим всю необходимую дополнительную информацию.
ООО «Артель Недвижимость»
УНП 193820882
Лицензия Министерства Юстиции №48250000081913 06.03.2025 г.
Договор №15/2а от 12.01.2026
Снять 3-комнатную квартиру, г. Минск, ул. Быховская, 10
г. Минск, ул. Быховская, 10
79 / 61 / м²
Сдается 3 -х комнатная квартира по ул. Быховская 10 общ.пл.79,3 кв.м. Кухня объединена ...























































