Аренда кабинетов в бизнес‑центре: комфорт, функциональность, удобство на улице Калиновского, 31А.
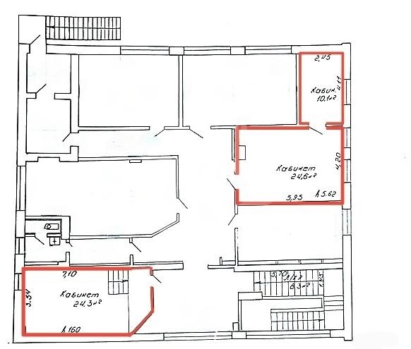
Предлагаем в аренду кабинеты на втором этаже бизнес‑центра — с качественным ремонтом, встроенной мебелью и всеми необходимыми коммуникациями. Возможна аренда, как целиком, так и по отдельности (площади: 10,1 м2, 24,6 м2, 24,3 м2).
Почему это выгодное решение?
1. Качественный ремонт — не требуется дополнительных вложений.
2. Встроенная мебель в кабинетах — всё готово для работы.
3. Собственный санузел — удобство для сотрудников и клиентов.
4. Мощность электросети — 35 кВт (подходит для интенсивного использования техники).
5. Комбинированная вентиляция (естественная + принудительная) — комфортный микроклимат.
6. Кондиционер — поддержание оптимальной температуры в любое время года.
7. Безопасность — пожарная, охранная сигнализация и индивидуальный домофон.
8. Круглосуточный доступ (24/7) — работайте в удобном графике.
9. Парковка — место для автомобилей сотрудников и посетителей.
10. Развитая инфраструктура — всё необходимое рядом.
11. Остановки общественного транспорта в шаговой доступности — лёгкий доступ для клиентов и сотрудников.
Для кого подойдёт?
Наши кабинеты идеальны для: офисов продаж и клиентских служб; юридических и консалтинговых компаний; IT‑стартапов и дизайн‑студий; образовательных центров и тренинговых площадок; представительств компаний и филиалов.
Заинтересовало? Звоните или пишите — договоримся о просмотре в удобное для вас время! Арендатор не оплачивает услуги агентства.
Больше объявлений тут: www.instagram.com/garant.arenda
Напишите нам в удобный для Вас мессенджер:
Viber | Telegram | WhatsApp
Ответим на Ваши вопросы, предоставим всю необходимую дополнительную информацию.
ООО «Артель Недвижимость»
УНП 193820882
Лицензия Министерства Юстиции №48250000081913 06.03.2025 г.
Договор № 151/2а от 03.10.2025.
Снять 3-комнатную квартиру, г. Минск, ул. Быховская, 10
г. Минск, ул. Быховская, 10
79 / 61 / м²
Сдается 3 -х комнатная квартира по ул. Быховская 10 общ.пл.79,3 кв.м. Кухня объединена ...






























