Офисные + складские (производственные) помещения с террасой и лоджией находящиеся в отдельном здании с собственной территорией. Полностью готовы к эксплуатации— хороший ремонт, мебель предоставляется.
Офис:
1-й этаж: 13,8 м2, 33,7 м2, 46,1 м2
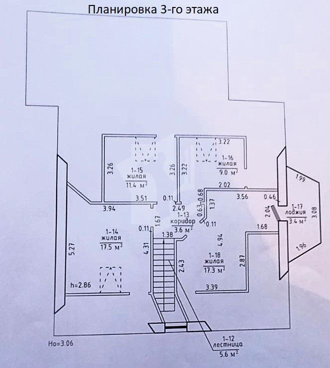
3-й этаж: 9,0 м2, 11,4 м2, 17,5 м2, 17,3 м2+лоджия 3,4 м2
(дополнительно могут быть предоставлены ещё 83 м2)
Склад (производство):
-1 этаж: 12,8 м2, 21,7 м2, 31,2 м2, 35,0 м2, (общая 100,7 м2)
Склад имеет универсальный ремонт: пол— цементно-песчаная стяжка, стены оштукатурены, имеет отдельный вход с рампой.
Основные преимущества:
- Естественная вентиляция, система кондиционирования;
- Собственная котельная (нет перебоев горячей воды и отопление «когда стало холодно»);
- 2 санузла с душевой, кухня;
- Электрическая мощность: 30 кВт, 380 В;
- Пожарная сигнализация;
- Оптоволокно, компьютерная сеть;
- Отдельное здание, своя территория, круглосуточный доступ;
- Два отдельных входа в офис;
- Видеонаблюдение, проведён видеодомофон;
- Вместительная парковка, удобный подъезд;
- Возможно арендовать всё здание!
Отлично подходит для офиса с собственным производством, либо складом (офис+склад); офиса; объекта сферы услуг.
Идеально для компаний, которым важно развитие и комфорт сотрудников, также этот вариант— автономия для вашего бизнеса, ведь всё находится в одном месте.
Арендатор не оплачивает услуги агентства.
Хотите посмотреть объект и обсудить детали? Мы организуем показ в любое удобное для вас время, рассмотрим Ваши предложения и ответить на интересующие вопросы. Звоните!Вы можете обратиться к специалисту, который занимается данным объектом, по вопросу подбора помещений коммерческого назначения, а также с просьбой сдать в аренду или продать Ваш объект недвижимости.
Больше объявлений тут: www.instagram.com/garant.arenda
Напишите нам в удобный для Вас мессенджер:
Viber | Telegram | WhatsApp
Ответим на Ваши вопросы, предоставим всю необходимую дополнительную информацию.
ООО «Артель Недвижимость»
УНП 193820882
Лицензия Министерства Юстиции №48250000081913 06.03.2025 г.
Договор № 281/2а от 31.03.2026
Снять 3-комнатную квартиру, г. Минск, ул. Быховская, 10
г. Минск, ул. Быховская, 10
79 / 61 / м²
Сдается 3 -х комнатная квартира по ул. Быховская 10 общ.пл.79,3 кв.м. Кухня объединена ...






























