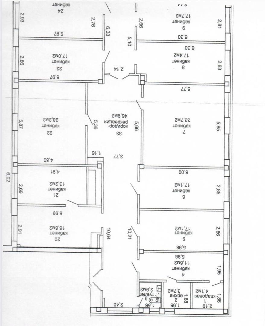
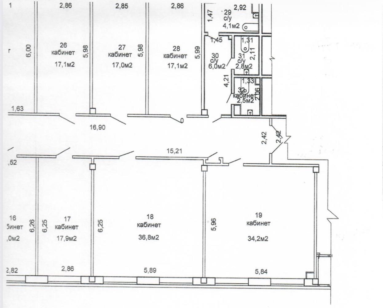
Предлагается в аренду просторный офис, общей площадью 711,2 м2, расположенное на ул. Володько, 6к1. Объект идеально подойдёт для размещения крупной компании, IT-бизнеса, колл-центра, представительства или административного офиса.
Помещение имеет кабинетную систему и включает 27 отдельных кабинетов, что позволяет эффективно организовать работу разных отделов и создать комфортную структуру бизнеса.
Функциональность и планировка:
- 27 отдельных кабинетов
- наличие серверной (готово для IT-инфраструктуры)
- кухня для сотрудников
- 3 санузла
- подсобные помещения для хранения
- объект оснащён всем необходимым для полноценной работы.
- безопасность и контроль доступа.
- наличие мебели.
Дополнительные преимущества:
Парковка со шлагбаумом (доступ по пультам), два отдельных входа, один из которых выходит во двор и подходит для разгрузки.
Возможность круглосуточного доступа.
Отдельно стоит отметить презентабельную входную группу с зоной ресепшн и стойкой регистрации, что создаёт правильное первое впечатление для клиентов и партнёров.
Объект сочетает в себе функциональность, безопасность и готовность к работе.
Больше объявлений тут: www.instagram.com/garant.arenda
Напишите нам в удобный для Вас мессенджер:
Viber | Telegram | WhatsApp
Ответим на Ваши вопросы, предоставим всю необходимую дополнительную информацию.
ООО «Артель Недвижимость»
УНП 193820882
Лицензия Министерства Юстиции №48250000081913 06.03.2025 г.
Договор № 225/2 от 12.03.2026
Снять 3-комнатную квартиру, г. Минск, ул. Быховская, 10
г. Минск, ул. Быховская, 10
79 / 61 / м²
Сдается 3 -х комнатная квартира по ул. Быховская 10 общ.пл.79,3 кв.м. Кухня объединена ...






























