Аренда коммерческого помещения: локация, которая работает на ваш бизнес 24/7 на ул. Леонида Щемелёва, 18.
Ищете помещение, где всё продумано до мелочей? Представляем вам идеальный вариант для старта или расширения бизнеса — светлое, современное пространство в престижном районе Минск-Мира рядом с метро «Аэродромная».
Ключевые преимущества:
- Готовый к работе интерьер: выполнен качественный ремонт, помещение без мебели — Вы сможете обустроить пространство под свои нужды.
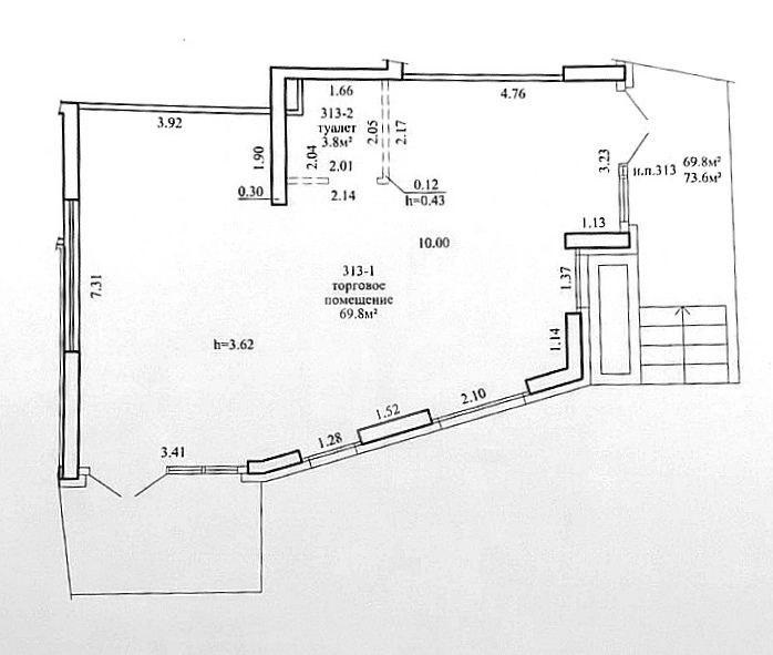
- Простор и комфорт: высота потолков — 3,62 м, площадь помещения — 73,6 м2, первый этаж.
- Собственная терраса — уникальное преимущество, открывающее дополнительные возможности для вашего бизнеса.
- Полная инженерная оснащённость: электричество 220В (трёхфазный ввод) и 11,2 кВт; центральное отопление; вентиляция; раздельный санузел с горячей и холодной водой; вывод под кондиционер; проведён кабель для интернета и телефона.
- Безопасность и контроль: установлена пожарная сигнализация, отдельный счётчик (даёт возможность контролировать температуру в помещении).
- Свободный доступ к помещению: 24/7.
- Удобство для клиентов и сотрудников: собственный санузел с горячей и холодной водой), 2 отдельных входа (первый вход с центральной стороны, второй сбоку дома, также предусмотрена терраса); несколько парковок рядом со зданием.
Локация с высоким потенциалом: развитая городская инфраструктура; рядом — остановки общественного транспорта (лёгкая доступность для клиентов и персонала), также в шаговой доступности метро «Аэродромная»)
Для кого подойдёт: офис, торговый пункт, салон красоты, общепит, кофейня, кондитерская, учебный или консультационный центр, любое другое коммерческое использование.
Не упустите шанс разместить свой бизнес в удобном и функциональном пространстве!
Арендатор не оплачивает услуги агентства.
Звоните прямо сейчас — отвечу на все вопросы и организуем показ в удобное для Вас время!
Больше объявлений тут: www.instagram.com/garant.arenda
Напишите нам в удобный для Вас мессенджер:
Viber | Telegram | WhatsApp
Ответим на Ваши вопросы, предоставим всю необходимую дополнительную информацию.
ООО «Артель Недвижимость»
УНП 193820882
Лицензия Министерства Юстиции №48250000081913 06.03.2025 г.
Договор №76/2а от 29.01.2026
Снять 3-комнатную квартиру, г. Минск, ул. Быховская, 10
г. Минск, ул. Быховская, 10
79 / 61 / м²
Сдается 3 -х комнатная квартира по ул. Быховская 10 общ.пл.79,3 кв.м. Кухня объединена ...























































