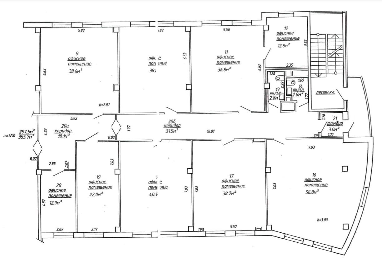
Офисный блок без мебели на 7 кабинетов 355,7м2 по адресу Либаво-Роменская 23
Планировка и коммуникации:
7 светлых кабинетов, готовая кухня + балкон;
Два санузла;
Стойка ресепшен при входе;
Оптоволоконный кабель и телефонные линии;
Элементы безбарьерной среды;
Кондиционирование, приточно-вытяжная вентиляция;
Кофейня на первом этаже (есть доставка в офис).
Безопасность и условия:
Юридический адрес;
Аренда от 1 года;
Пожарная сигнализация;
Видеонаблюдение;
Доступ 24/7;
Парковка и развитая инфраструктура.
Больше объявлений тут: www.instagram.com/garant.arenda
Напишите нам в удобный для Вас мессенджер:
Viber | Telegram | WhatsApp
Ответим на Ваши вопросы, предоставим всю необходимую дополнительную информацию.
ООО «Артель Недвижимость»
УНП 193820882
Лицензия Министерства Юстиции №48250000081913 06.03.2025 г.
Договор №343/2а от 23.04.2026
Снять 3-комнатную квартиру, г. Минск, ул. Быховская, 10
г. Минск, ул. Быховская, 10
79 / 61 / м²
Сдается 3 -х комнатная квартира по ул. Быховская 10 общ.пл.79,3 кв.м. Кухня объединена ...






























