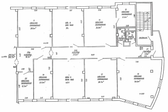
Аренда торгового павильона 70,0 м², ул.Немига 5
г. Минск, ул. Немига, 5
Центральный район
ст. м. Немига
70 / / м²
Предлагаем под аренду торговое помещение в историческом центре Минска в ТЦ "Метрополь", у...










































































































































