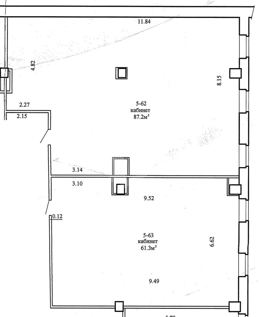
Помещение имеет площадь 148,5 квадратных метра . Выполнен хороший ремонт , имеется кондиционер и водоснабжение . Подходит под офис или сферу услуг .
Развитая инфраструктура , хорошее транспортное сообщение и станция метро "Институт культуры" в пяти минутах пешком.
Больше объявлений тут: www.instagram.com/garant.arenda
Напишите нам в удобный для Вас мессенджер:
Viber | Telegram | WhatsApp
Ответим на Ваши вопросы, предоставим всю необходимую дополнительную информацию.
Больше объявлений тут: www.instagram.com/garant.arenda
ООО «Артель Недвижимость»
УНП 193820882
Лицензия Министерства Юстиции №48250000081913 06.03.2025 г.
Договор 85/2а от 23.09.2025
Снять 3-комнатную квартиру, г. Минск, ул. Быховская, 10
г. Минск, ул. Быховская, 10
79 / 61 / м²
Сдается 3 -х комнатная квартира по ул. Быховская 10 общ.пл.79,3 кв.м. Кухня объединена ...























































