Сдаётся в аренду помещение в «ТЦ Силуэт» по ул Веры Хоружей 1А
г. Минск, ул. Хоружей, 1/А
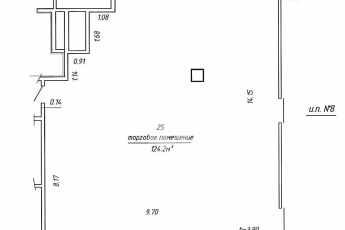
7 / 7 / м²
Предоставляется в аренду компактное, и уютное помещение с ремонтом 7,6м2 в «ТЦ Силуэт» по ул Веры Х...




































































































































