Продается прекрасная однокомнатная квартира в современном доме у Комсомольского озера!
Расположена на 6 этаже 10-этажного кирпичного дома (2013 год постройки). Закрытая территория с видеонаблюдением и шлагбаумом, подземный паркинг. Организована безбарьерная среда от входа в подъезд до лифта.
Квартира с прекрасным видом на сквер. Уютный двор с цветами летом и новогодним декором зимой. Доброжелательные и тихие соседи. Дом находится на обслуживании ТС.
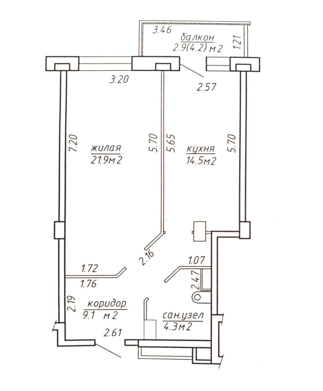
Высота потолков — 2,7 м. Межкомнатные двери из массива дерева. По всей квартире уложен ламинат единым контуром(кроме ванной). Вся электрика разведена по индивидуальному проекту с зональным освещением (розетки и автоматические выключатели ABB). Продается частично с мебелью и полностью готова к проживанию.
Кухня-гостиная: просторная, с выходом на застекленный утепленный балкон. Встроенная кухня с техникой: посудомоечная машина Bosch, варочная панель Bosch, духовой шкаф Gorenje, вытяжка Exiteq, холодильник LG. Раковина из искусственного камня с фильтром обратного осмоса.
Жилая комната: разделена на гостиную и спальню. В перегородке — дополнительное пространство для хранения.
Ванная: с водонагревателем Timberk. Смесители Grohe и Teka, стиральная машина LG.
Прихожая: два больших шкафа для хранения. Электрический щит у входа за картиной.
Балкон: окна с двойным стеклопакетом, утепленные стены и пол, встроенные шкафы по периметру.
Локация: между парком Победы (Комсомольское озеро) и парком Дружбы Народов. Зеленые зоны, велодорожка, детские площадки, пляж. В пешей доступности: детсады, школы, магазины, поликлиники, бассейн, кинотеатр «Киев», Дворец детей и молодежи. В самом домом — пункт Wildberries, салон красоты, комната для детей «Тетя Мотя».
Отличная транспортная доступность: 10 минут на трамвае до ст.м. «Площадь Победы»/ «Я. Коласа». В перспективе — открытие ст.м. «Парк дружбы народов» и «Старовиленская» в 5 минутах ходьбы.
Чистая продажа! Один собственник с момента покупки у застройщика. Высокая ликвидность. Звоните, чтобы узнать больше и договориться о просмотре!
Работаем с различными видами кредитования:
- Система строительных сбережений от Беларусбанка;
-Семейный капитал;
-Ипотечное кредитование и все виды кредитования на покупку недвижимости.
А также:
-Подыщем выгодный для Вас банк;
-Поможем продать вашу недвижимость для покупки этой.
Напишите нам в удобный для Вас мессенджер:
Viber | Telegram | WhatsApp
Ответим на Ваши вопросы, предоставим всю необходимую информацию.
ООО «Артель Недвижимость»
УНП 193820882
Лицензия Министерства Юстиции №48250000081913 от 06.03.2025 г.
Договор №777/2 от 15.12.2025
В продаже просторная 2-комнатная квартира в экологически чистом районе
г. Минск ул. Олешева, 1
Советский район
74.1 / 32.6 / 11.4 м²
5555 byn / м²
1951 $ / м²
В продаже уютная 2-комнатная квартира 74.1м² в престижном районе, расположенном в одной из самых эк...

Продажа своей квартиры
Кредит
Собственные средства



















































































































































