Продаётся просторный дом в тихом месте, д. Мариполь, Самохваловичского сельского совета. 20 км от Минска.
Идеальное соотношение природы и близости цивилизации.
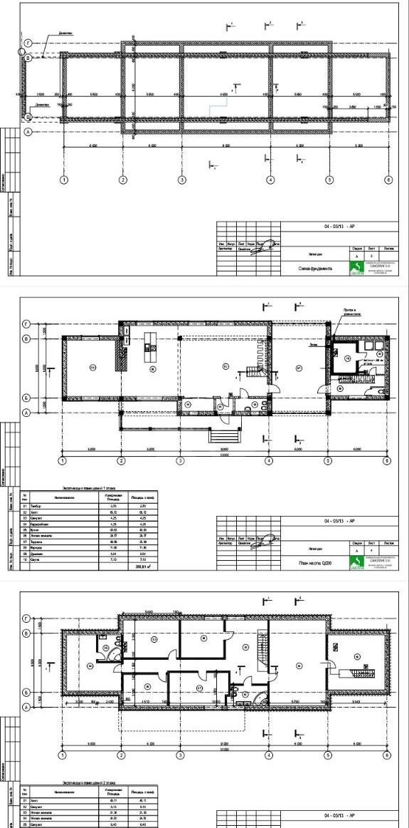
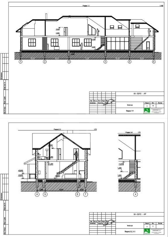
Дом строили для себя, качественно и с любовью. Дом очень просторный. 1-ый уровень предусмотрен для совместного времяпровождения, а на 2-ом уровне предполагались светлые уютные спальни и кабинет. Несколько санузлов, баня и гостевой домик. Планировка позволяет воплотить любые дизайнерские фантазии новых владельцев.
Есть автобусное сообщение с Минском, дом расположен на тихой улице рядом с парком.
Площадь застройки 546,94 кв
Общая площадь здания 436 кв
Жилая площадь 191,90
Площадь указана по СНБ.
Работаем с различными видами кредитования:
- Система строительных сбережений от Беларусбанка;
-Семейный капитал;
-Ипотечное кредитование и все виды кредитования на покупку недвижимости.
А также:
-Подыщем выгодный для Вас банк;
-Поможем продать вашу недвижимость для покупки этой.
Напишите нам в удобный для Вас мессенджер:
Viber | Telegram | WhatsApp
Ответим на Ваши вопросы, предоставим всю необходимую информацию.
ООО «Артель Недвижимость»
УНП 19382088 2
Лицензия Министерства Юстиции №48250000081913 от 06.03.2025 г.
Договор № 273/2 от 02.03.2026
Стильный дом в современном, живописном ст Росинка-1
СТ Росинка
43 км от Минска
96 / / м²
Продается дача (незаконченное строительство) в живописном загородном районе- в садовом това...


























































































