Продается дом в живописном уголке у реки Неман !
Этот экологичный и теплый дом был построен в 2013 году из соснового лафета и утеплен эковатой, что обеспечивает комфорт в любое время года. С прочным бутобетонным фундаментом, деревянными перекрытиями и крышей, покрытой гибкой черепицей, ваш новый дом обещает долговечность и надежность. Все окна оборудованы пластиковыми стеклопакетами, что дополнительно способствует энергосбережению.
Основные характеристики:
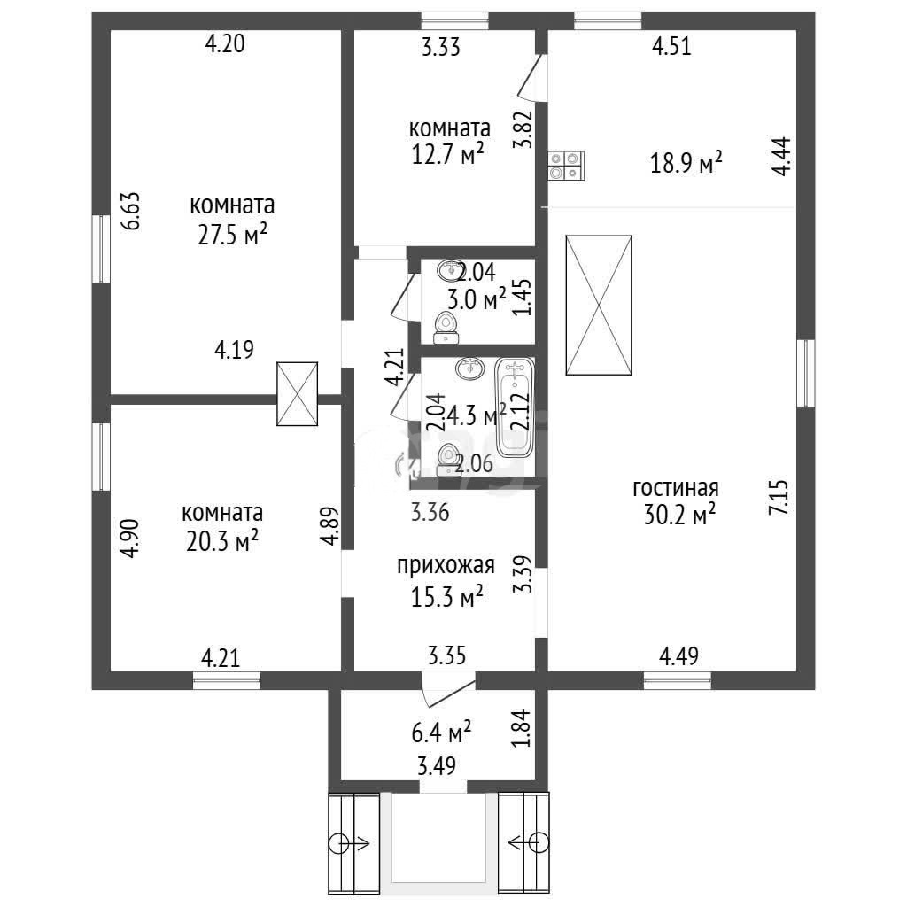
- Общая площадь: 138.6 м2, жилая площадь: 90.7 м2
- На первом этаже расположены:
- 4 уютные жилые комнаты
- Просторная кухня-гостиная
- 2 санузла (один с ванной, другой с душевой)
- Вместительная прихожая (15.3 м2) и коридор (6.4 м2) с потолками высотой 2.84 м
Коммуникации и удобства:
- Вода из скважины с бойлером объемом 150 литров
- Местная канализация
- Отапливаемый дом двумя печками: одна с лежанкой и варочной плитой, вторая - между двумя комнатами
- Второй этаж - мансардный, площадью 138.6 м2, готовый под отделку
- Газовый баллон для бытовых нужд и электричество 220В/380В
- Выгребная яма на 3 бетонных кольца диаметром 1.5 м
Участок:
- Площадь 25 соток в пожизненно наследуемом владении
- Утепленная пристройка под гараж или мастерскую с печным отоплением
- Бревенчатая баня, 2 погреба, открытый навес и дровник
- Дополнительно 18 соток для ведения личного подсобного хозяйства
- Участок огражден забором из бетона и металлопрофиля
На приусадебном участке вы найдете кусты смородины, крыжовника, ежевики и сладкого винограда, а также плодовые деревья - черешню, вишню и яблони, которые уже радуют хорошим урожаем.
Инфраструктура и удобства:
- Новая асфальтированная дорога позволяет легко добраться в любое время года
- Дружелюбное соседство
- В деревне есть все необходимые удобства: детский сад, школа, 2 магазина, почтовое отделение, сельсовет, аптека и новый ФАП с лабораторией и дневным стационаром
Отдых и досуг:
- Река Нёман недалеко с обустроенным пляжем для семейного отдыха
- Возможность аренды байдарок с опытным инструктором для сплава по реке
- Лес вокруг полон ягод и грибов, что порадует любителей природы
Транспортная доступность:
- Расстояние до г. Узда - всего 15 км
- Отличное транспортное сообщение: автобусные и маршрутные остановки находятся в 20 метрах от дома
Не упустите шанс приобрести этот уникальный дом! Мы с радостью поможем продать вашу недвижимость, чтобы вы могли купить этот прекрасный уголок для жизни!
Торг возможен!
Площадь указана по СНБ.
Работаем с различными видами кредитования:
- Система строительных сбережений от Беларусбанка;
-Семейный капитал;
-Ипотечное кредитование и все виды кредитования на покупку недвижимости.
А также:
-Подыщем выгодный для Вас банк;
-Поможем продать вашу недвижимость для покупки этой.
Напишите нам в удобный для Вас мессенджер:
Viber | Telegram | WhatsApp
Ответим на Ваши вопросы, предоставим всю необходимую информацию.
ООО «Артель Недвижимость»
УНП 193820882
Лицензия Министерства Юстиции №48250000081913 от 06.03.2025 г.
Договор № 845/2 от 30.12.2025
Стильный дом в современном, живописном ст Росинка-1
СТ Росинка
43 км от Минска
96 / / м²
Продается дача (незаконченное строительство) в живописном загородном районе- в садовом това...































































































