Стильный дом в современном, живописном ст Росинка-1
СТ Росинка
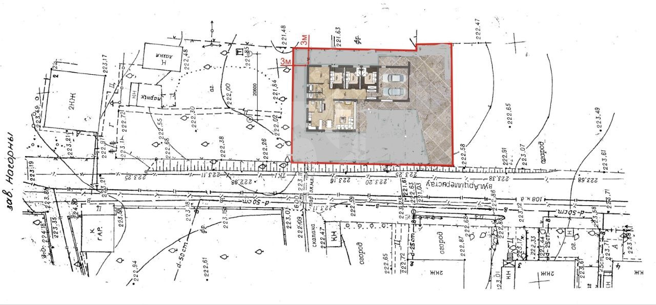
43 км от Минска
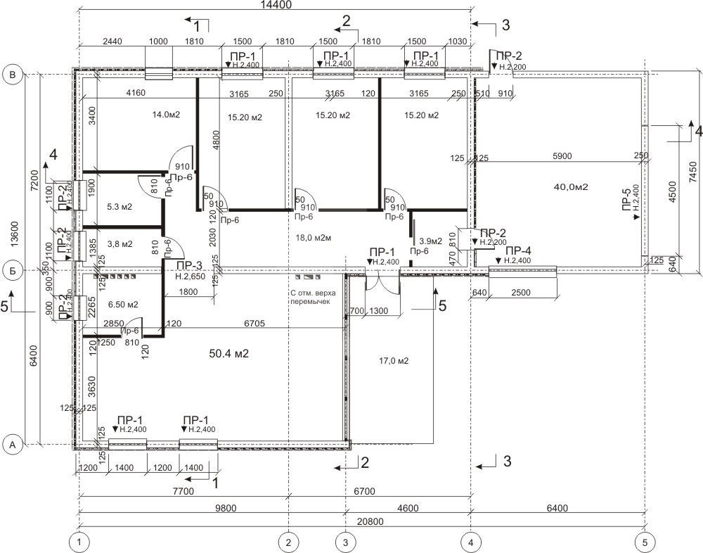
96 / / м²
Продается дача (незаконченное строительство) в живописном загородном районе- в садовом това...





















































































